For Sale

$999,900

50 CARDIFF ROAD , Toronto (Bridle Path-Sunnybrook-York Mills), Ontario M4P2P2

4+1 Beds 5 Baths 1 Partial Bath

Remarks

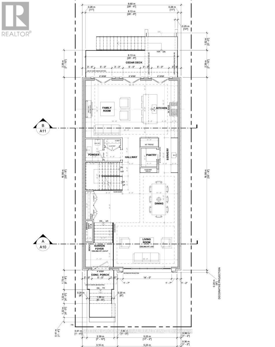
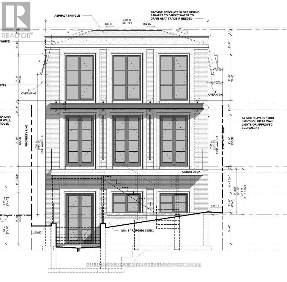
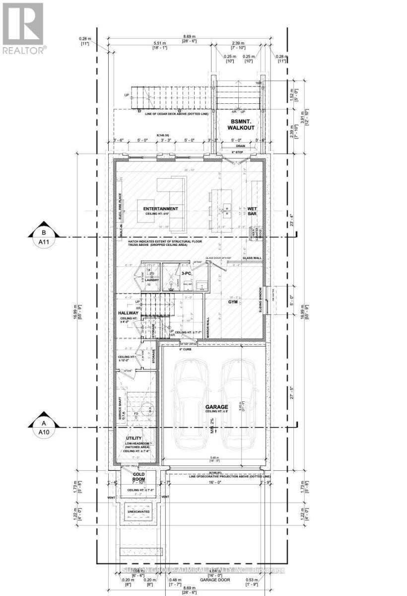
A rare opportunity to build tomorrow. building permit is in hand for this architecturally magnifcent residence designed by award-winning Zanjani Architects. Situated on one of the most coveted and private lots in Leaside, this property boasts an extra-deep 136-foot lot with no homes backing onto it, offering the ultimate secluded backyard oasis perfect for a pool and outdoor entertaining. Located on a quiet, family-friendly street just a short walk to the vibrant shops and restaurants of Bayview and Mt. Pleasant, and within the highly sought-after Northlea and Leaside school districts, this property combines luxury living with everyday convenience.The approved plans feature 4,343 sq. ft. of total living space, making it one of the largest homes in the neighbourhood, with 10 ceilings on the main foor, 9 on the second, and 10 ceilings in the basement. All approvals are in place COA passed (June), tree permit obtained, fees paid, locates and disconnects requested everything is ready for you to start demolition and construction immediately. (id:7526)

Property Summary

  • Neighbourhood: Bridle Path-Sunnybrook-York Mills
  • Lot Frontage: 33.5 Feet
  • Lot Depth: 136.0 Feet
  • Lot Size: 33.5 x 136 FT
  • No. of Parking Spaces: 2
  • Bedrooms: 4+1
  • Bathrooms (Total): 5
  • Bathrooms (Partial): 1

Property Features:

  • Ownership Type:
    Freehold
  • Parking Type:
    Garage
  • Pool Type:
    Inground pool
  • Property Type:
    Single Family
  • Sewer:
    Sanitary sewer

Building Features:

  • Amenities:
    []
  • Appliances:
    Garage door opener remote
  • Basement Development:
    Finished
  • Basement Type:
    N/A , N/A
  • Building Type:
    House
  • Construction Style - Attachment:
    Detached
  • Cooling Type:
    Central air conditioning , Air exchanger
  • Exterior Finish:
    Brick , Stone
  • Foundation Type:
    Concrete
  • Heating Fuel:
    Natural gas
  • Heating Type:
    Forced air

Rooms

  • Bedroom:
    Level: 2nd 5.27 m x 4.91 m
  • 2nd Bedroom:
    Level: 2nd 4.12 m x 3.20 m
  • 3rd Bedroom:
    Level: 2nd 4.13 m x 3.20 m
  • 4th Bedroom:
    Level: 2nd 4.12 m x 3.20 m
  • Kitchen:
    Level: Basement 5.36 m x 3.66 m
  • Living:
    Level: Basement 5.36 m x 4.90 m
  • 5th Bedroom:
    Level: Basement 4.12 m x 3.20 m
  • Living:
    Level: Main 5.72 m x 3.69 m
  • Dining:
    Level: Main 4.39 m x 3.35 m
  • Breakfast:
    Level: Main 3.11 m x 1.10 m
  • Kitchen:
    Level: Main 5.10 m x 5.72 m
  • Family:
    Level: Main 5.10 m x 5.12 m

Office Listing: 

BEHNAM AMIRGHASSEMI , Broker

Lifestyle
Neighbourhood Info

Get More Info

Book a tour